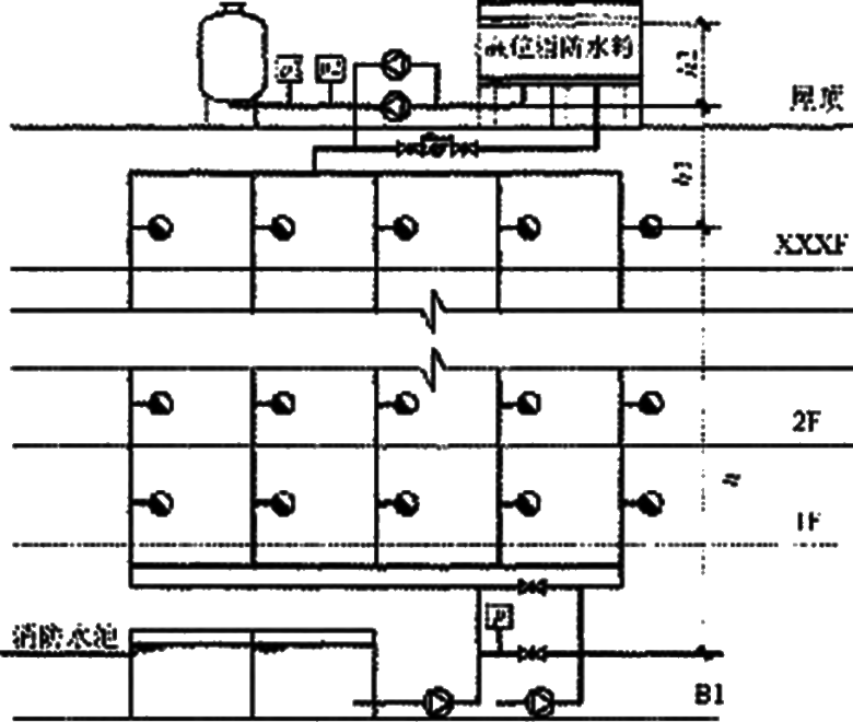
稳压泵设计压力确定如下。

稳压泵设在屋顶时设计压力确定
1.稳压泵启泵压力p1>15一h1,且≥h2+7;
2.稳压泵停泵压力p2=p1/0.8;
3.消防泵启泵压力P=p1+h1+h一(7~10)。

稳压泵设在底部时设计压力确定
1.稳压泵启泵压力p1≥h+15,且≥h2+10;
2.稳压泵停泵压力p2=p1/0.85:
3.消防泵启泵压力P=p1一(7~10)。
例1:某一类高层公共建筑,建筑高度92m,层高4m,地上23层,地下一层。室内消火栓系统采用临时高压给水系统。室外地面标高为±0.0m,屋顶消防水箱最低水位标高为93.5m,最高水位标高为95m,室内最不利点消火栓标高为89.1m,地下室消火栓标高为一3.1m,稳压泵设在屋顶,消火栓泵设在地下一层,吸水口标高为-3.5m。
问题:1.稳压泵启泵压力p1设为12m是否合理?为什么?
2.如果p1取12m,停泵压力p2和消防水泵启动压力p应如何取值?
【答案】
1.稳压泵设计压力应保持系统最不利点消火栓在准工作状态上静水压力大于0.15MPa,即启泵压力p1>15一高位消防水箱最低水位至最不利点消火栓几何高度,p1>15一(93.5-89.1)=10.6m,符合要求。同时,p1还应大于高位消防水箱最高水位与最低水位差+7,p1>(95—93.5)+7=8.5m。因此,取12m是合理的。
2.p1=12m,则稳压泵停泵压力p2=p1/0.8=15m。
稳压泵设计压力应保持系统自动启泵压力设置点在准工作状态时大于系统设置自动启泵压力值,增加值宜为0.07~0.1MPa
消防水泵启泵压力P=p1+高位消防水箱最低水位与消防水泵高差-(7~10),即P=12+93.5+3.5-(7~10)=99~102m之间。
2.消防水池容积
(1)一起火灾灭火所需消防用水设计流量:
|
组 成 |
备 注 |
|
室外消火栓系统 |
|
|
室内消火栓系统 |
|
|
自动灭火系统(如自动喷水灭火系统、泡沫灭火系统、水喷雾灭火系统、消防炮等) |
取最大值 |
|
水幕或固定冷却分隔 |
|